Power Backup
Lift
Security
Parks
24X7 Water
Kids Area
Maintenance Staff
Health Facilities



Ans. 5 Units.
Ans. 2 Ground.
Ans. 5 Floors.
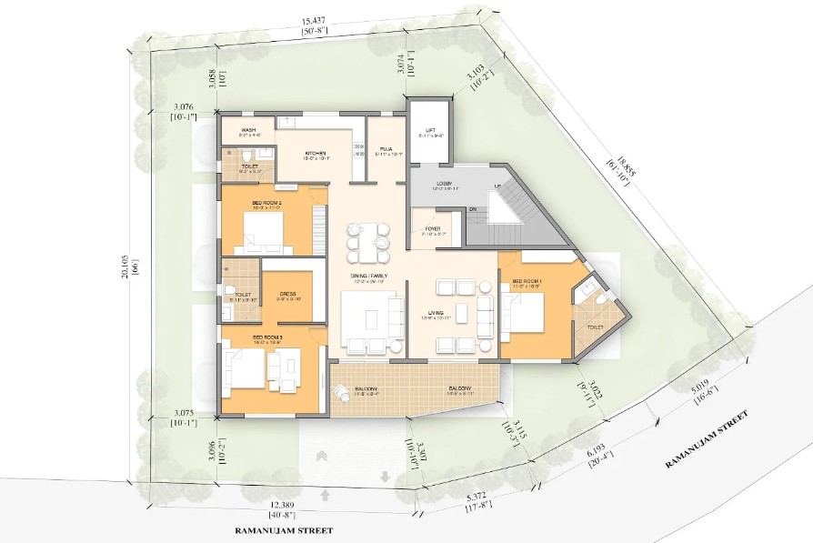
Ans. 3 BHK.
Ans. Holy Angels Anglo Indian Higher Secondary School, Justice Basheer Ahmed Sayeed College for Women. Huma Specialist Hospital, Venkateswara Hospitals.
Ans. Ramanujam street, T nagar.